Huy: 085 30 10 03 huy@immo-bertrand.be Nandrin: 085 31 31 15 nandrin@immo-bertrand.be
Vendu
HUY - Maison

!!! OPTION OPTION OPTION !!!

149.000€
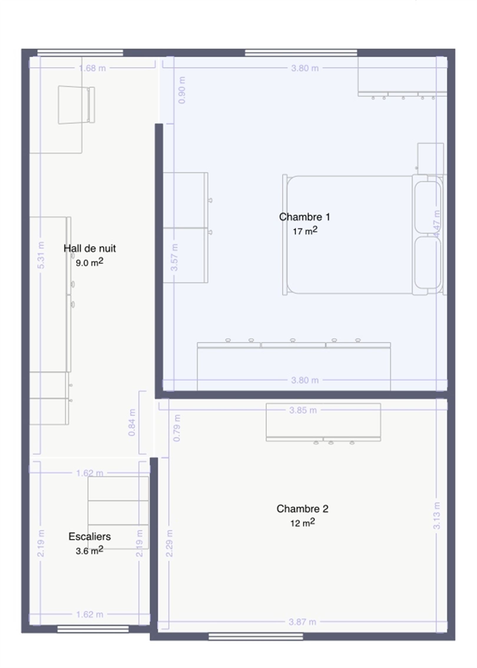
!!! OPTION OPTION OPTION !!! Idéalement située à proximité directe de toutes les commodités, cette jolie maison 3 façades est assise sur un terrain de 260m² et se compose comme suit : Au sous-sol : une cave de 6m². Au rez-de-chaussée : un vaste hall d’entrée, un lumineux et spacieux séjour de 30m², une cuisine d'environ 10m² offrant l’accès aux extérieurs et une salle de douche et une buanderie. Au 1er étage : un hall de nuit et deux agréables chambres (17m² et 12m²). Au 2e étage : un grenier de 43m² au sol, accessible par échelle escamotable. À l’extérieur : une remise, une terrasse, un beau jardin orienté sud-ouest offrant une magnifique vue et une allée latérale à la maison facilitant l'accès au jardin. Caractéristiques techniques : châssis bois et aluminium à simple vitrage, chauffage via poêle au gaz de ville, toiture en tuiles et toiture plate (annexe). Cette maison à fort potentiel vous séduira par ses généreux volumes et par sa proximités des commerces. Faire offre à partir de 149.000,00 € (offre soumise à l’acceptation des vendeurs). Plus d’informations sur demande. Informations données à titre indicatif et non contractuel ! À visiter sans tarder ! www.immo-bertrand.be

PEB

PEB No.20260218026525

E spec: 511kWh/m2/an
E totale: 63928kWh/an

Contactez-nous

Localisation

Rue Joseph Wauters, 41
4500 HUY

Contactez-nous

Découvrez nos

Biens similaires

SAINT-NICOLAS - Maison

Belle maison 1ch bien située !

63 m2

1

39 m2

149.000€

À vendre

AMPSIN - Maison

Maison 2ch avec jardin et garage !

142 m2

2

875 m2

139.000€

À vendre

VILLERS-LE-BOUILLET - Maison

Maison 3 ch avec superbe potentiel !

144 m2

3

115 m2

149.000€

À vendre