Huy: 085 30 10 03 huy@immo-bertrand.be Nandrin: 085 31 31 15 nandrin@immo-bertrand.be
À vendre
HUY - Maison

Jolie maison rénovée en centre-ville !

189.000€
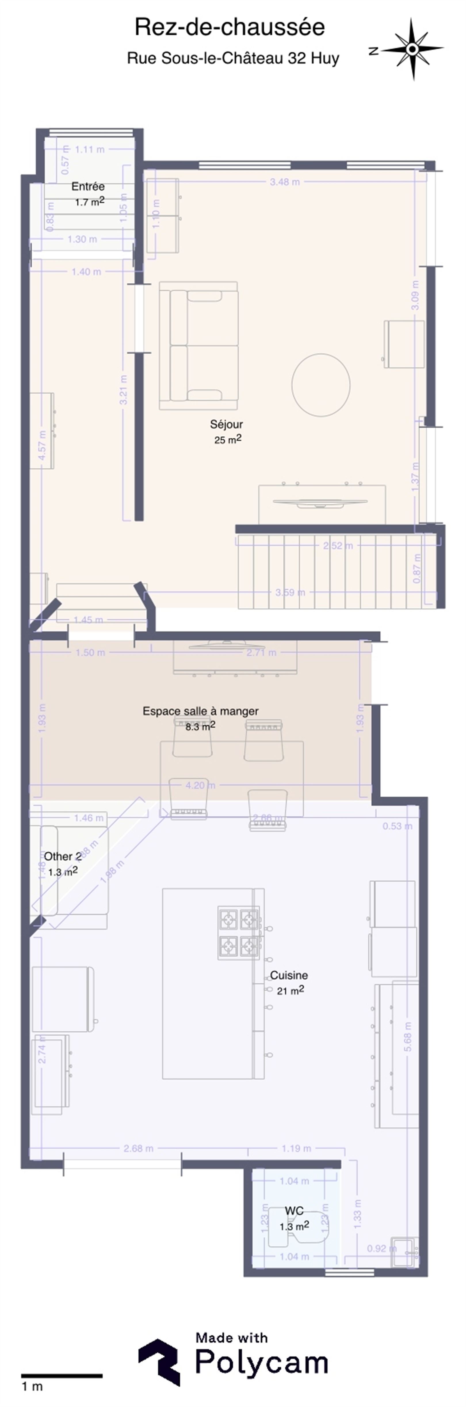
Située en centre-ville et à proximité immédiate de toutes les commodités, cette jolie maison, implantée sur un terrain de 110 m², se compose comme suit : Au sous-sol : deux grandes caves d’une superficie totale de 38 m². Au rez-de-chaussée : un vaste hall d’entrée avec porte vitrée, un beau salon de 15 m² avec poêle à pellets, une agréable salle à manger ouverte sur la cuisine (30 m²) offrant un accès aux extérieurs, ainsi qu’une toilette indépendante. Au 1er étage : un grand palier aménageable de 15 m² et une salle de douche avec espace buanderie. Au 2e étage : un hall de nuit desservant deux agréables chambres de 15 m² et 12 m². Au 3e étage : un grenier de 16 m² au sol. À l’extérieur : une cour murée de 20 m² (projection d’aménagement réalisée par intelligence artificielle, donnée à titre informatif). Caractéristiques techniques : chauffage central au gaz de ville, poêle à pellets, châssis PVC double vitrage, raccordement à l’égout. Réserve de jouissance au profit du vendeur pour une durée maximale de 3 mois après l’acte authentique (750 €/mois). Faire offre à partir de 189.000 € (offre soumise à l’acceptation des vendeurs). Informations données à titre indicatif et non contractuel. À visiter sans tarder ! www.immo-bertrand.be

PEB

PEB No.20250607005842

E spec: 215kWh/m2/an
E totale: 33390kWh/an

Contactez-nous

Localisation

Rue Sous le Château, 32
4500 HUY

Contactez-nous

Découvrez nos

Biens similaires

HUY - Maison de ville

Charmante maison 2ch en centre-ville !

101 m2

2

44 m2

179.000€

À vendre

HUY - Duplex/triplex

Charmant triplex 2ch en centre-ville !

101 m2

2

44 m2

179.000€

À vendre

HUY - Maison

Jolie maison rénovée en centre-ville !

215 m2

2

110 m2

189.000€

À vendre