Huy: 085 30 10 03 huy@immo-bertrand.be Nandrin: 085 31 31 15 nandrin@immo-bertrand.be
À vendre
TROOZ - Maison

Immeuble de rapport avec maison 5 chambres + appartement 1 chambre – Situation idéale !

249.000€
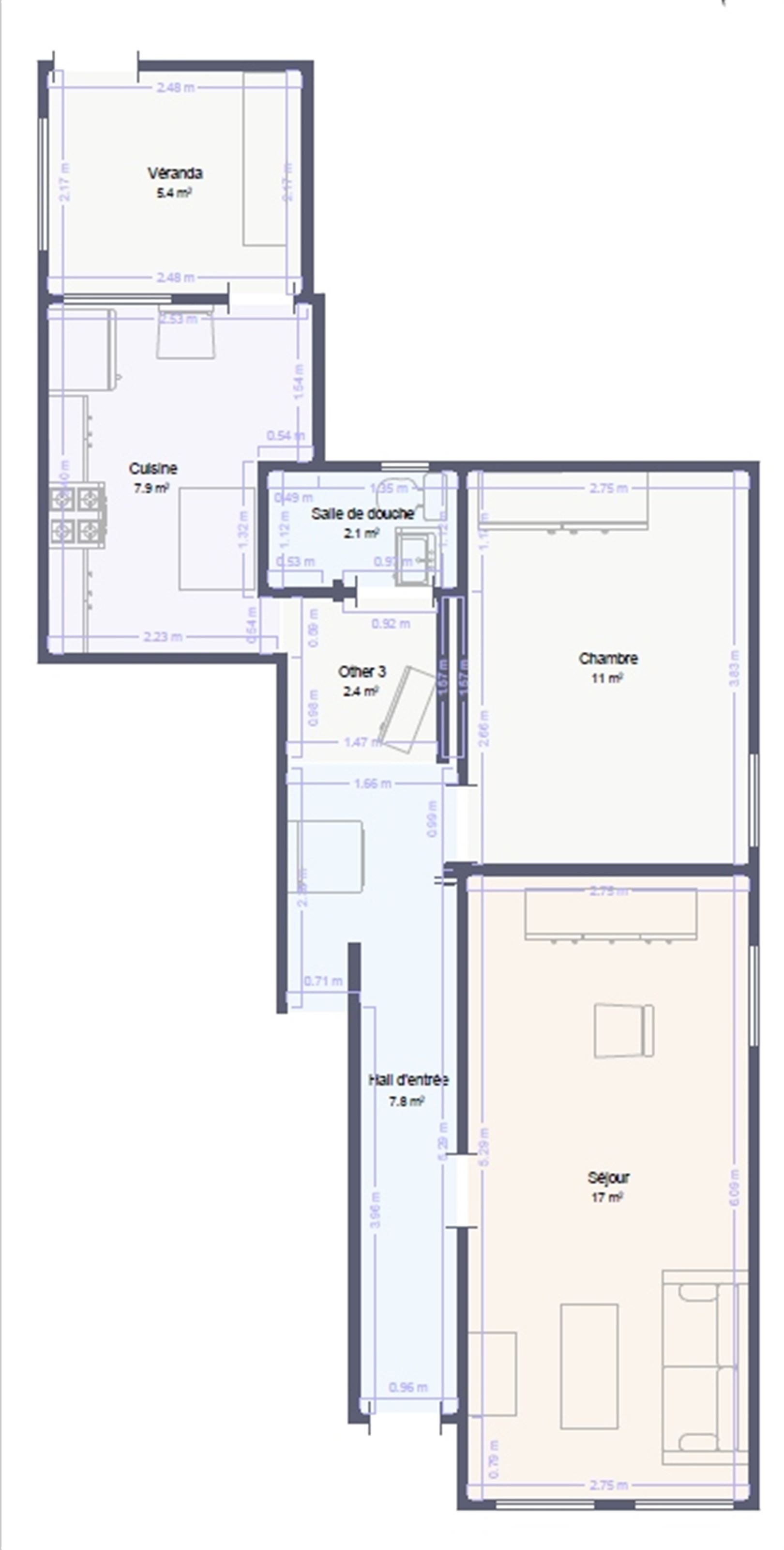
Idéalement situé sur la Place du Marché, cet immeuble de rapport offre une excellente opportunité d’investissement avec un rendement locatif immédiat. Le bien se compose de deux entités : Un appartement 1 chambre au rez-de-chaussée, actuellement loué, garantissant un revenu locatif direct. Une spacieuse maison d’habitation, libre d’occupation, offrant de beaux volumes et de nombreuses possibilités d’aménagement. Composition maison : un vaste séjour lumineux avec accès direct à une agréable terrasse, une cuisine fonctionnelle avec arrière-cuisine, 5 chambres spacieuses, une salle de bain, un grand garage avec espace chaufferie et buanderie. Composition appartement : Hall d’entrée, salon, salle à manger, cuisine et arrière-cuisine, une chambre et une salle de bain. À l’extérieur, vous profiterez d’une belle terrasse au niveau des pièces de vie ainsi que d’un jardin, idéal pour les moments de détente. Points forts : situation centrale recherchée, revenu locatif immédiat, maison libre à l’acte, nombreuses possibilités (habitation + investissement). Idéal pour investisseur ou grande famille souhaitant allier habitation et rendement ! Faire offre à partir de 249.000,00 euros sous réserve de l'acceptation des propriétaires. www.immo-bertrand.be

PEB

PEB No.20250301001931

E spec: 252kWh/m2/an

Contactez-nous

Localisation

Place du Marché, 39
4870 TROOZ

Contactez-nous

Découvrez nos

Biens similaires

VINALMONT - Maison

Charmante maison 3ch avec beau terrain !

197 m2

3

2445 m2

249.000€

À vendre

WANZE - Maison

Charmante maison 3ch avec jardin et garage!

149 m2

3

499 m2

289.000€

À vendre

CLAVIER - Maison

Maison 3ch avec magnifique jardin et garage !

146 m2

3

2370 m2

299.000€

À vendre